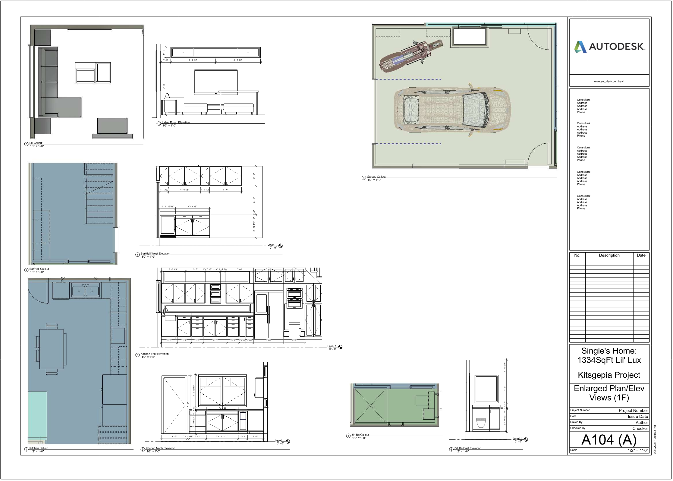
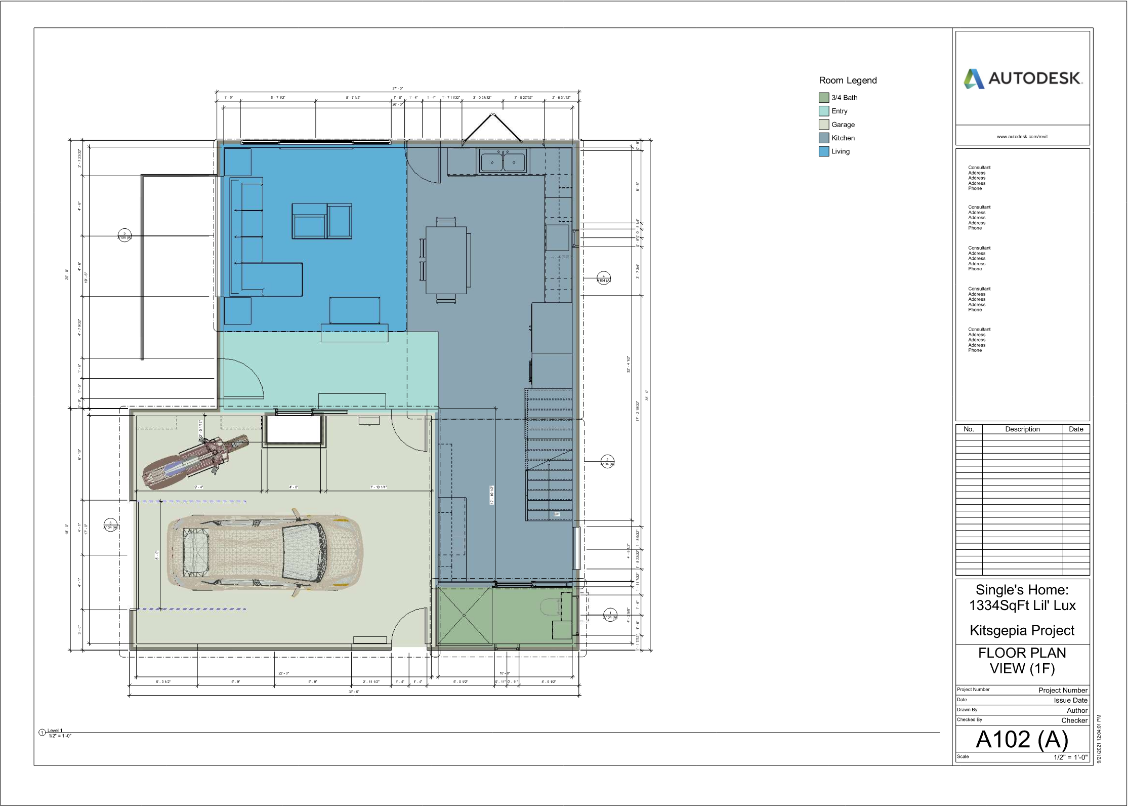
This was my first foray into using Revit, in 2020. I used my Kitsgepia hobby project as my final for this class, as seen below. This was before I understood Revit thoroughly enough to properly display items.
Next
Next
This was my first foray into using Revit, in 2020. I used my Kitsgepia hobby project as my final for this class, as seen below. This was before I understood Revit thoroughly enough to properly display items.